Samozamykací zámek EL066
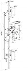
Dostupnost: NA DOTAZEL066 backset 30, čelo 24, délka čelného štítu 1760 (popř. 2000), rozteč 92mm
Potřebujete poradit? Tel.: 608 243 222
ABLOY EL066 Multipoint – mechanický samozamykací úzký vícebodový zámek
EL066 backset 30, čelo 24, délka čelného štítu 1760 (popř. 2000), rozteč 92mm
Použití
Pro vnitřní i venkovní rámové dveře s úzkým profilem rámu.
Lze použít do požárně odolných dveří.
Lze použít pro panikové únikové východy.
Ideální řešení pro uzamykání technických prostor s vyšším stupněm zabezpečení.
Řešení uzamykání pro vstupní dveře bez potřeby elektrického ovládání.
Výhody
Pravolevý - obousměrná střelka.
Samozamykací - při každém zavření dveří se automaticky vysune závora zámku a háky.
Jištěné zamykání zámku - v zamčeném stavu jsou vysunuty háky, závora a zároveň je blokována střelka zámku - zámek je zajištěn ve čtyřech bodech.
Možnost monitorování činnosti zámku - jen typ EL266 "Signalizace" v části "Technická data".
Certifikace
ČSN EN 179 - Pro únikové východy
ČSN EN 1125 - Pro panikové únikové východy
ČSN EN 1634-1 - Pro požárně odolné dveře
ČSN EN 12209:2004 Stavební kování.
Zámky a závory. Mechanicky ovládané zámky, závory a protiplechy
Funkce zámku
Po uzavření dveří je zajišťovací střelka společně s hlavní střelkou zatlačena o protiplech do těla zámku a po vyskočení hlavní střelky do zárubně dojde k automatickému vysunutí závory, háků a následnému zablokování střelky.
Stisknutím aktivované nebo panikové kliky jsou závora a háky zataženy do těla zámku a následně odblokována střelka.
Zámek se chová jako panikový ve směru úniku, tj. vnitřní klikou lze zámek kdykoliv odemknout a otevřít dveře.
Z venkovní strany je možné zámek otevřít jen pomocí cylindrické vložky - použitím klíče.
Provozní režimy
Panikový zámek EL066 Multipoint - Při každém zavření dveří dojde k samouzamčení zámku. Zámek lze odemknout z vnitřní strany stisknutím panikové kliky, případně klíčem. Z venkovní strany je možné zámek odemknout jen pomocí klíče. Doporučujeme použití bezpečnostního kování IKON SX48 - klika-madlo. EL066 nepotřebuje žádný kabel ani elektrické napájení!
Panikový zámek se signalizací EL266 Multipoint - Samozamykací mechanická verze s elektrickou signalizací bez elektrického ovládání - stejná mechanická funkce jako EL066 s možností monitorovat funkci kliky, závory, klíče, dveří. Pro možnost využití monitorovací funkce je nutné k zámku přivést kabel EA218 nebo EA219.
Poznámka:
Zámek EL266 je vybaven konektorem pro možnost vyvedení signalizace pomocí kabelu EA218 nebo EA219. Kabel musí být veden od zámku rámem dveří přes zadlabací (EA280, EA281) nebo povrchovou průchodku (8812, TSB - C) do zárubně dveří
SPECIFIKACE:
Technická data
Rozsah pracovních teplot: -20°C až +60°C
Signalizace (jen EL266):
a) závora zatažená
b) závora vysunutá
c) klíč odemyká/volný
d) klika stisknutá/volná
e) dveře otevřené/zavřené
Výsuv závory:
20 mm, 10mm (střelka), 24mm (háky)
Backset:
standardně 30, 35 a 45 mm
na objednávku 40 mm
Délka čelního štítu zámku:
1760mm
2000mm
Rozměry čelního štítu (rozvor):
24 x 6,5mm
Čtyřhran:
9 mm, s redukcí lze použít i 8 mm
Povrchová úprava:
štít zámku z nerez oceli
Cylindrická vložka:
DIN - europrofil
Bezpečnostní kování:
Klika -madlo
DIN - rozteč 92 mm
Balení obsahuje:
zámek, upevňovací šrouby, redukce z 9 mm na 8 mm a návod
Platba a doprava
Podrobné informace o nabízených možnostech doručení a způsobech platby naleznete také zde. Objednávky s osobním odběrem je možné vyzvednout po předchozí telefonické domluvě na adrese prodejny. Vyčkejte prosím, až vás budeme informovat, že je zboží připravené k odběru.
Doufáme, že se vám bude líbit každý produkt, ale pokud budete potřebovat zboží vrátit, můžete tak učinit do 14 dní od zakoupení. Podrobné informace o tom, jak provést vrácení zboží, naleznete v informacích o vrácení. Zde si můžete stáhnout také formulář.



